Garden Heights View 1
Balancing density and livability, this high-density housing proposal in Amsterdam integrates vertical open spaces, turning rooftops, terraces, and balconies into layered breathing zones for residents.
Garden Heights View 2
Vertical green and social spaces challenged me to rethink openness, not as leftover ground, but as intentional layers of connection and calm woven into the height of the building.
Garden Heights View 3
Designing dwellings taught me that repetition doesn’t mean sameness when combined with variety and adaptability, it becomes a tool for creating rhythm, identity, and homes that grow with their inhabitants.
Garden Heights View 4
A mixed-use building, to me, is more than stacked functions: it's a micro-city where living, working, and gathering intertwine, creating vibrant layers of activity and a sense of belonging throughout the day.
Garden Heights View 5
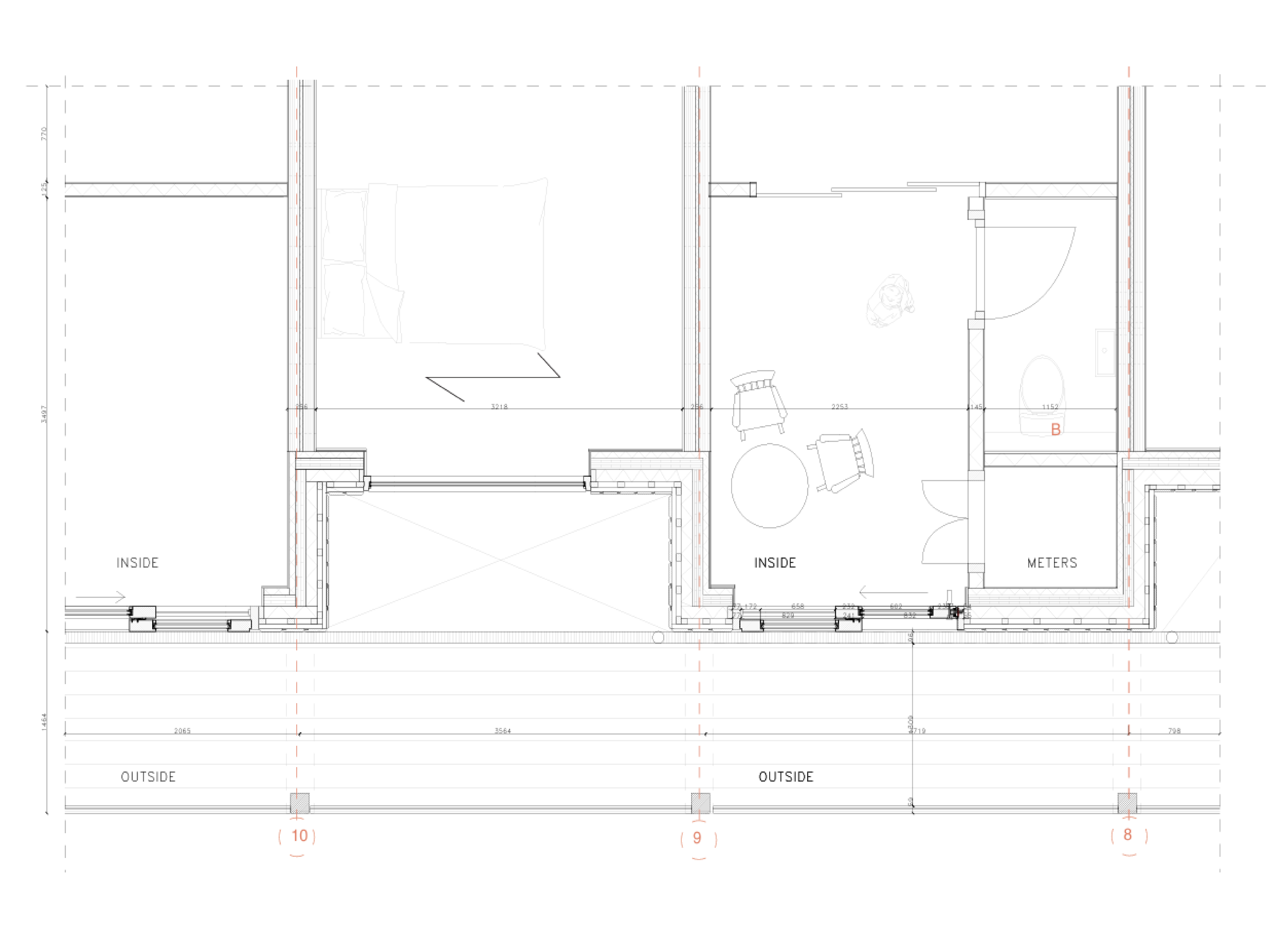
I see technique as an extension of design intent where material, modularity, and facade are not separate layers, but part of an integrated system. By designing with construction logic in mind, I aim to create architecture that is sustainable, adaptable, and expressive of how it’s made.
Garden Heights View 6
My research into timber systems and modular housing focuses on their potential to address scalability, circularity, and climate performance. By studying joinery, prefabrication, and spatial repetition, I explore how these methods can inform sustainable, adaptable, and human-centered residential design.
Garden Heights View 7
I see volume not just as mass, but as a balance of weight, lightness, and void. It’s a tool to sculpt space, create hierarchy, and express intention through form.
Garden Heights View 8
Modelmaking is where I think with my hands. It helps me test scale, light, and rhythm in real time, revealing nuances I often miss in drawings. It’s a way for me to slow down, explore, and physically connect with the design.

× Zoomed Image